检查 / 诊断步骤 :
F模式动作正常,非F模式时大臂与小臂复合出现问题,翻阅液压图纸首先想到的是合流出现了故障。
非F模式时,大臂单独动作,大臂速度在正常范围内,大臂合流应该没问题。大小臂复合动作,大臂速度慢判断问题应该出现在小臂合流(小臂合流故障时常通)。
G模式下手握小臂合流的控制油管Ps,无动作时无压力(正常)。作大臂提升也无压力(不正常)。F模式无动作Ps油管有压力(正常),这说明了:大小臂复合动作时无法切断小臂合流导致的大臂提升速度异常慢。

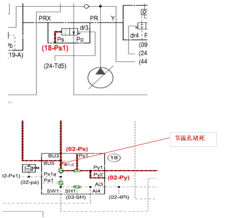
4. 翻阅先导油路的液压图纸得知小臂合流的控制油路是大臂提升的先导油BU2-BU5经过一个节流孔在经过一个梭阀(Px1a进行压力比较),然后经过第二个梭阀(与Py1进行压力大小比较)最终到达Ps。
5.依次检查2个梭阀和一个节流孔,发现问题出在节流孔堵死。清洗节流孔故障消失。
解决方案:清洗节流孔,并建议更换液压油和液压滤芯。
原理分析:

此设备液压油及液压滤芯长时间不更换,液压变脏导致节流孔卡死最终导致的这个奇葩故障,若客户及时进行保养,这个故障根本不会出现。所以及时的对设备进行保养尤为重要。
NOK爱体育官方网站-爱体育aitiyu(中国)
咨询:
NOK密封件咨询:
三之星皮带咨询:
川崎液压咨询:
CFW爱体育官方网站-爱体育aitiyu(中国)
咨询:
EKK机械密封咨询: